Dom na sprzedaż Wieniawa, Koryciska

4 pokoje
84.66 m²
7 441,52 zł/m2
LNR-DS-185
Oblicz ratę kredytu

629 999 zł

Dom na sprzedaż

Szczegóły oferty

Symbol oferty LNR-DS-185
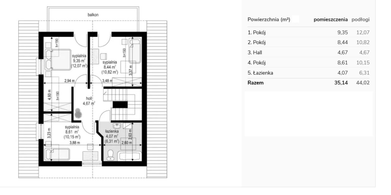
Powierzchnia 84,66 m²
Powierzchnia użytkowa [m2] 84,66 m²
Powierzchnia działki [m2] 2 100 m²
Liczba pokoi 4
Rodzaj domu jednorodzinny
Technologia budowlana gazobeton
Standard
Liczba pięter w budynku 1
Wymiary działki 15X140 m
Okna PCV
Instalacje nowe
Zagosp. działki częściowo zagospodarowana
Ukształtowanie działki płaska
Kształt działki prostokąt
Pokrycie dachu blachodachówka
Stan budynku do wykończenia
Ogrodzenie działki siatka
Gaz brak
Woda jest
Ogrzewanie centralne
Umeblowanie brak
Prąd jest
Kanalizacja własna oczyszczalnia

Opis nieruchomości

Dom jednorodzinny- projekt D03 „Grześ” | działka ok. 2100 m²
Na sprzedaż dom jednorodzinny w stanie deweloperskim, realizowany według projektu D03 Grześ.
Nieruchomość położona jest na działce o powierzchni około 2100 m², częściowo ogrodzonej, co zapewnia komfort i prywatność przyszłym właścicielom.
Dom wybudowany z pustaka H+H, z dbałością o solidność konstrukcji:
- lany strop
- pełne deskowanie dachu
- pokrycie - blachodachówka
- stan deweloperski - możliwość wykończenia według własnej wizji
W projekcie wprowadzono funkcjonalną zmianę - na parterze oddzielono pokój dzienny od salonu, co daje większą swobodę aranżacyjną i wyraźny podział stref w domu (np. osobna jadalnia, gabinet lub dodatkowy pokój).
Media:
- prąd
- woda
- szambo lub alternatywnie - przydomowa oczyszczalnia ścieków
Na działce znajduje się również studnia z bali, która nadaje nieruchomości wyjątkowego charakteru, oraz drewniana szopa - idealna jako miejsce do przechowywania narzędzi, sprzętu ogrodowego czy drewna.
Duża, około 2100-metrowa działka daje szerokie możliwości zagospodarowania – ogród, strefa relaksu, plac zabaw czy dodatkową zabudowę gospodarczą.
To solidnie wybudowany dom z potencjałem, idealny dla osób, które chcą wykończyć nieruchomość według własnych potrzeb i gustu.

Jeżeli ten projekt lub lokalizacja nie spełniają Twoich oczekiwań, zapraszam do zapoznania się z moimi pozostałymi ogłoszeniami.
https://www.nieruchomosci-online.pl/agenci/jaroslaw-nowak-2

Lokalizacja nieruchomości

Kalkulatory

Kalkulator kredytowy

Wysokość raty

PLN
%

Kalkulator kosztów

Taksa notarialna
(opłata notarialna)

Wniosek o wpis do KW

VAT od prowizji
agencji nieruchomości

VAT od taksy notarialnej
(opłaty notarialnej)

Prowizja agencji nieruchomości

Wypisy aktu notarialnego

Razem

Uwaga: mogą wystąpić dodatkowe opłaty za założenie księgi wieczystej oraz ustanowienie hipoteki.

PLN
PLN
PLN
PLN
PLN
%
PLN

Doradca

Proszę wprowadzić poprawne imię i nazwisko
Proszę wprowadzić poprawny numer telefonu
Proszę wprowadzić poprawny adres e-mail
Proszę zaznaczyć wymagane zgody
Rozwiąż równanie:
24 9
Niepoprawny wynik